บริษัท Daishin Setsubi จำกัด(มหาชน)
Back

งานติดตั้งระบบสุขภัณฑ์และระบบปรับอากาศ คิฟุเนะคอมมิวนิตี้เซ็นเตอร์

 
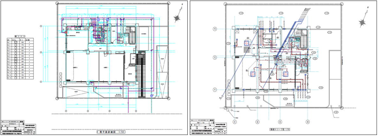
แบบแปลน


แบบแปลนการก่อสร้าง



แบบแปลนการก่อสร้าง


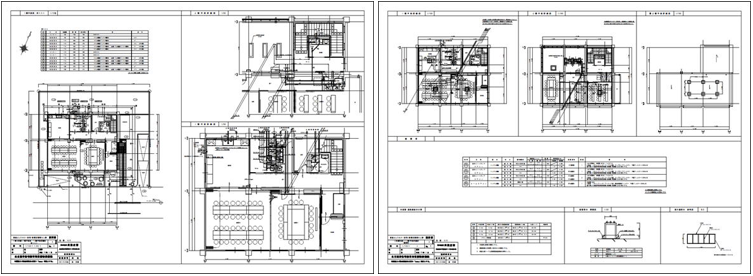
ระหว่างการติดตั้ง


เสร็จสมบูรณ์



Copyright(C) 2009 Daishins All Rights Reserved.